売却をお考えの方へ
売却をお考えの方へ
「那須の暮らし」自然やレジャーなど那須の魅力をご案内します

トップ戸建情報>H-47 中古戸建

 
※画像をクリックすると大きな画像をご覧いただけます。
【物件概要】  
物件番号 H-50
物件名 萩原中古住宅
種別 戸建
価格

売却済

土地面積

743u(225坪)

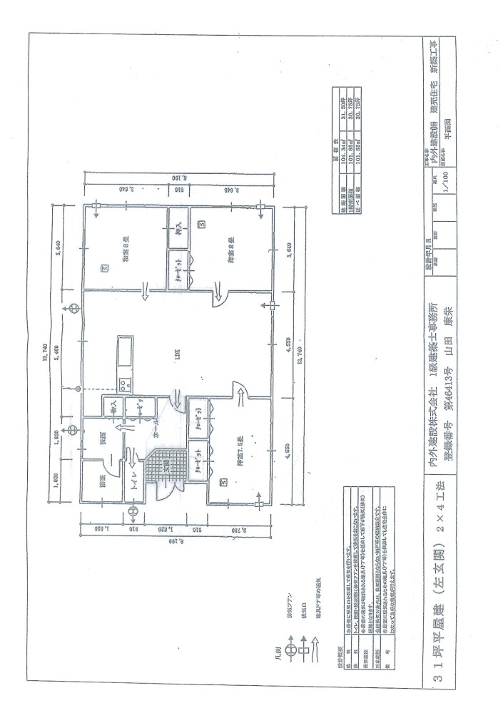
延床面積 101.85u(31坪)、車庫32.86u
間取り 3LDK(平屋建)
所在地

那須郡那須町大字寺子字萩原

交通 JR高久駅 約2km 徒歩25分
権利形態 所有権
建/容 60/200
地目 宅地
仕様 2×4工法住宅、全窓断熱樹脂サッシペアガラス、対面カウンタ-、LDK壁パイン無垢半丸太張、全室壁無垢パイン腰板張
その他概要 東電、公営水道、合併浄化槽、プロパン
近隣施設 河畔公園、図書館、文化センタ-等約3km
特記 ◇田舎暮らし向き
◇建物全改修済
備考 日当たり良く菜園、ガ-デニング可、備品付
外観1、南向き建物、物置兼書庫2台分付、
外観2、平坦で明るく広い庭で菜園を楽しめる
LDK壁無垢パイン半丸太張、対面カウンタ−キッチン
キッチン大型カップボ−ボ付 キッチンIH、食洗機、床下収納庫 和室8畳、腰壁パイン無垢板
 

洋室7.5畳、腰壁パイン無垢

洋室8畳、腰壁無垢パイン張

1坪タイプ、ユニットバス新品

 

洋室7.5畳クロ−ゼット

洋室8畳クロ−ゼット

洗面化粧台、3面鏡、腰壁無垢パイン、洗濯パン付

 

トイレ暖房便座、ウオシュレット、テスリ付

玄関、ピッキング防止等、2重ロック断熱サッシ、親子ドア、人感センサ−付き玄関灯 

玄関ホ−ル、腰壁無垢パイン張

外観3、建物と物置兼車庫の間にコンクリ-ト敷き 間取図 案内図
ページトップへ戻る
内外土地開発株式会社 本社 〒108-0073 東京都港区三田2−14−7
電話:03-3454-5080 FAX:03-3777-4560
Copyright c naigaitochikaihatuCo.All Rights Reserved